KiCad文件
全屏
内容介绍
内容介绍
任务介绍
设计一款四位七段数码管驱动模块2线串行接口控制包含:亮度调节功能、
模块介绍
根据任务要求本次我选用的是HT16K33HT16K33 是 Holtek(合泰)推出的一款LED 驱动及键盘扫描控制芯片,专为数码管、点阵 LED 等显示设备设计,同时支持按键扫描功能,广泛应用于小型显示终端(如电子钟、仪表盘、小家电显示屏等)。
HT16K33HT16K33 得捷的链接1048 Adafruit Industries LLC | 光电器件 | DigiKey
原理图和PCB模块介绍


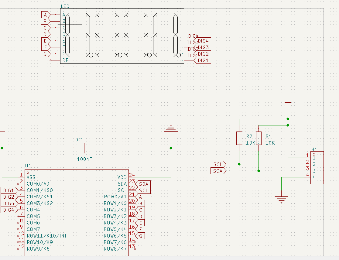
一、核心器件:HT16K33(U1)
- 功能:HT16K33 是合泰推出的 LED 驱动与键盘扫描芯片,内置 128×8 位 RAM,支持 I²C 通信,可驱动最多 16×8 的 LED 点阵或 8 位 7 段数码管,同时具备按键扫描能力(本电路未用按键功能)。
二、数码管显示模块
- 4 位 7 段数码管:包含 A - G 段(对应数码管的 7 个笔画)和 DP(小数点),用于显示数字或字符。
- 连接方式:
- HT16K33 的
A - G引脚(U1 的 14 - 20 脚)连接数码管的段引脚(A - G),控制每个笔画的亮灭。 - HT16K33 的
COM0 - COM4引脚(U1 的 3 - 7 脚)连接数码管的位选引脚(DIG1 - DIG4),通过 “位选 + 段选” 的动态扫描方式,依次点亮 4 位数码管,利用人眼视觉暂留实现 “同时亮” 的效果。
- HT16K33 的
三、I²C 通信模块
- 接口
H1:4 针接插件,用于连接主控设备(如 MCU)的 I²C 总线: - 引脚 1:电源(VDD,需与 HT16K33 的
VDD共电,通常为 3.3V 或 5V)。 - 引脚 2:
SCL(I²C 时钟线),接 HT16K33 的SCL引脚(U1 的 22 脚),并通过R1(10kΩ)上拉到电源,保证信号电平稳定。 - 引脚 3:
SDA(I²C 数据线),接 HT16K33 的SDA引脚(U1 的 23 脚),同样通过R2(10kΩ)上拉到电源。 - 引脚 4:地(GND),与 HT16K33 的
VSS(U1 的 1 脚)共地。
- 引脚 1:电源(VDD,需与 HT16K33 的
四、电源与滤波模块
- 电源
VDD:为 HT16K33 和数码管提供工作电压(3.3V 或 5V,需与主控设备匹配)。 - 滤波电容
C1(100nF):接在VDD与VSS之间,滤除电源的高频噪声,保证芯片供电稳定。
电路工作流程
- 主控通信:MCU 通过
H1的SCL和SDA,向 HT16K33 发送 I²C 指令,包括 “设备地址选择”(HT16K33 支持 4 种从机地址,由A1引脚配置,本电路中A1接ROW0,需结合实际接线确定地址)、“显示数据写入” 等。 - 数据存储:HT16K33 将接收到的显示数据存入内部 RAM,RAM 的地址与数码管的 “位(COM)” 和 “段(A - G、DP)” 一一映射。
- 动态扫描显示:HT16K33 内部的扫描电路,按一定频率依次选通
COM0 - COM4(对应 DIG1 - DIG4),同时在A - G引脚输出对应段的电平,使当前选中的数码管显示指定数字,通过快速切换 4 位数码管,实现稳定的 4 位数字显示。
管脚定义
1 | VDD | 输入 | 电源输入(3.3V 或 5V,与 HT16K33、数码管供电一致) | 接 MCU 的电源输出或外部稳压电源正极 |
2 | SCL | 双向 | I²C 时钟线,传输同步时钟信号 | 接 MCU 的 I²C_SCL 引脚,通过 10kΩ 上拉电阻接 VDD |
3 | SDA | 双向 | I²C 数据线,传输显示数据和控制指令 | 接 MCU 的 I²C_SDA 引脚,通过 10kΩ 上拉电阻接 VDD |
4 | GND | 地 | 电源地 / 信号地,为整个电路提供参考地 | 接 MCU 的 GND、数码管地、HT16K33 的 VSS |
eZ-PLM上新建物料和项目的截图
使用了eZ-PLM系统上传了自己的工程文件,方便保存记录各个版本,也可随时查阅,系统里查阅不到的物料也支持手动添加。


心得体会
设计 HT16K33 数码管电路,让我体会到集成芯片对简化设计的重要性。用 I²C 总线替代传统并行接口,仅需 2 根线就控制 4 位数码管,大幅减少了 MCU 引脚占用。
调试时发现,上拉电阻选型影响通信稳定性,4.7kΩ 比 10kΩ 响应更灵敏。动态扫描的频率设置也关键,过低会有闪烁,过高则增加功耗,最终选 200Hz 平衡效果。
电路虽简单,但细节决定可靠性,比如电源滤波电容和地址引脚配置,让我明白硬件设计需兼顾功能实现与实际场景适配。
附件下载
ProPrj_数码管_2025-10-19.kicad_pcb
ProPrj_数码管_2025-10-19.kicad_sch
团队介绍
无
评论
0 / 100
查看更多