内容介绍
内容介绍
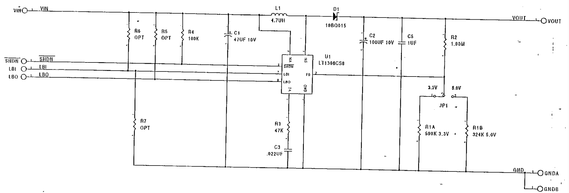
DC207A是一款演示电路板,用于展示LT1308CS82A单节升压DC/DC转换器的性能。该电路板能够从低至1V的输入电压生成3.3V或5V的输出。操作的第一步是通过设置跳线JP1来选择输出电压。输入电压范围是1V至5V,当设置为生成3.3V时,输出将在1V至3.5V的更有限输入范围内被调节。DC207A在连接适当的负载时,能够根据不同的输入和输出电压提供不同的电流,例如,当从镍镉电池(1.2V)供电时,能够在3.3V下提供300mA的电流;在3.3V转换至5V时,能够提供850mA的电流。DC207A可以通过将SHDN引脚接地来关闭,此时LT1308的消耗电流小于3μA。在测量DC207A的效率时,应注意按照图1所示的电路进行安排,特别是在DC207A的引脚上测量输入和输出电压,而不是在输入电源或负载上,以避免从效率计算中消除安培表的电压降。
附件下载
DC207A - Demo Manual.pdf
评论
0 / 100
查看更多
